Working as lead planning consultant whilst employing specialists in law, heritage, architecture, ecology, highways, arboriculture and drainage, Horne & Associates sought to maximise the development potential of the site located within a Conservation Area and sited adjacent to a Listed Building.

Planning permission was approved for a generously proportioned detached 2-storey 5-bedroom property with double garage on garden land previously associated with an existing bungalow cottage.

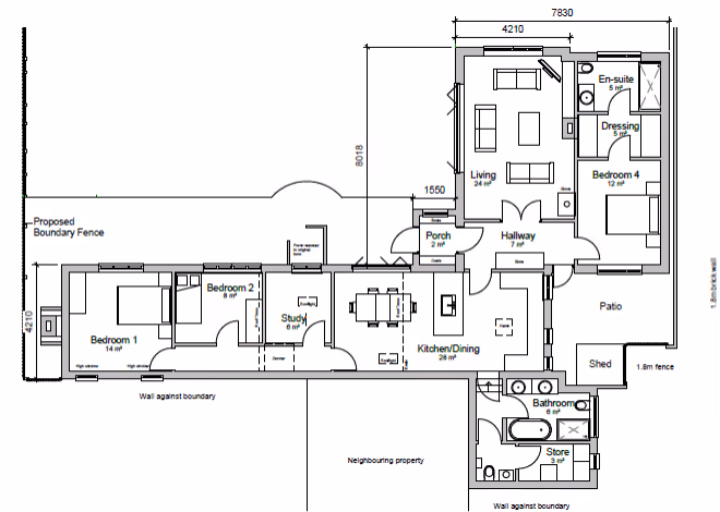
Once approval was granted for the new dwelling house within its grounds, approval of planning permission was sought for extensions and alterations to the existing bungalow cottage. The proposal included adding a new wing providing an additional two bedrooms, one with dressing room and en-suite bathroom, along with a large reception room, porch and entrance hall. The proposal included landscaped gardens and driveway parking set behind a secluded gated entrance. Planning permission was approved in 2026.
